Solutions
Horse Construction offers full range of structural strengthening materials with technical supports, documentation supports, products supports, project supports.
CFRP
Currently commonly used CFRP reinforced reinforced concrete structure form



1 Reinforcement of the normal section of the bending member (bending reinforcement)
Paste the CFRP along the main axis of the component. By pasting CFRP in the tension area of the component, using the higher tensile strength and elastic modulus of CFRP material, it can be stressed together with the tension steel bar to improve the flexural performance of the component and achieve the purpose of strengthening the reinforced concrete component. .

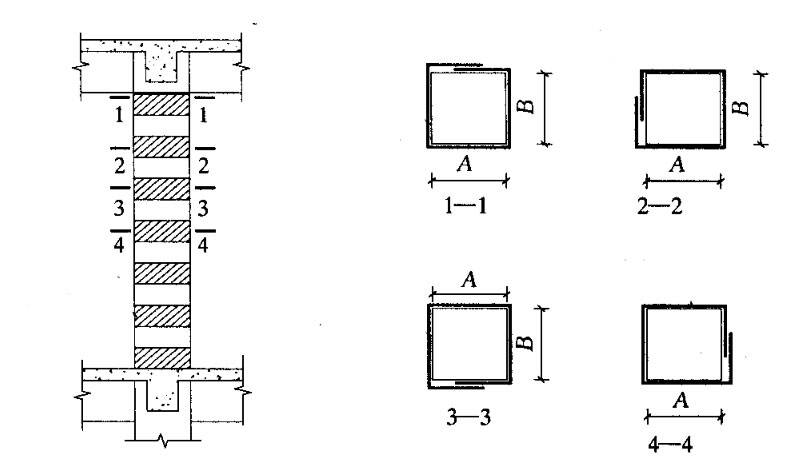
2 Member oblique section reinforcement (shear reinforcement)
The reinforcement of the oblique section of the member includes the beam shear reinforcement and the axial compression column shear reinforcement. Paste the CFRP ring hoop or U-shaped hoop in the main axis direction of the vertical component. The mechanism of CFRP shear reinforcement is similar to the shear mechanism of stirrups. CFRP is pasted in the bending and shearing area of the component, and the shear force is shared by the CFRP and the reinforcement to achieve the purpose of shear reinforcement of the component.

3 Reinforcement of the normal section of axial compression members (reinforcement of column compressive bearing capacity)
Stick CFRP ring-shaped chicks in the main axis direction of the vertical members for reinforcement. Using CFRP to restrain the concrete to improve its compressive strength, thereby increasing the compressive bearing capacity of the column.
You can find anything here you are in need of, have a trust trying on these products, you will find the big difference after that.
High strength, unidirectional carbon fiber fabric pre-saturated to form a carbon fiber reinforced polymer (CFRP) fabric used to strengthen structural concrete elements.
High strength, unidirectional carbon fiber sheet pre-saturated to form a carbon fiber reinforced polymer (CFRP) sheet used to strengthen structural concrete elements.
Two-components modified epoxy resin adhesive, with high quality plastic tube, double cartridge package for anchoring