Solutions
Horse Construction offers full range of structural strengthening materials with technical supports, documentation supports, products supports, project supports.
prestressed CFRP plate

Bridge disease and reinforcement plan
In February 2012, the A and B cable-stayed bridges were inspected regularly, and the results showed that there were local vertical cracks in the lower towers of the bridge towers, and local pounding and erosion of the roof, bottom and webs of the main girder sections. In October 2012, the inspection unit carried out a load test with a load level of automobile-over 20 and a 120 on the above two cable-stayed bridges. The results show that the ratio of the residual strain value of the main tower to the total strain is less than the standard allowable value of 20%, and the main tower is in an elastic working state. It is recommended to strengthen the main tower. Through structural calculation and analysis, the normal stress values of the upper and lower edges of the main beam are both within the range of stress values allowed by the code, and the shear stress value on the main beam is also within the range of stress values allowed by the code. There is no tensile stress on the lower edge of the pylon, and all are under compression. The upper edge of the pylon has a tensile stress of 0.1 MP a at the root of the pylon, and a tensile stress of 0.8 4 MP a appears at the position of the tower column on the left tower. Tensile stress. The maximum tensile stress of the stay cable is 612.1M Pa. Through the analysis of the calculation results of the operating state, in the operating phase, under the most unfavorable load combination, the normal stress values of the upper and lower edges of the main beam are within the stress value range allowed by the code, and the shear stress value on the main beam is also allowed by the code Within the range of stress values. The lower edge of the pylon has a tensile stress of 0.1 4 MP a at the intersection of the pylons and beams. The other positions are under compression. The upper edge of the pylon has a tensile stress of 0.3 MP a at the root of the pylon. A tensile stress of 0.87M Pa appears at the position of the tower column on the tower. The maximum tensile stress on the stay cable is 654.2 M Pa. The column disease of the cable-stayed bridge is shown in Figure 1.

According to the above test results, it is determined that the prestressed carbon fiber plate reinforcement technology is used to strengthen the tower column. The pre-stressed carbon fiber plate exerts considerable strength in advance, so as to effectively utilize its high-strength performance, suppress structural cracks, and improve the tensile strength of the component. The reinforcement plan is: the prestressed carbon fiber plate is tensioned outside the cable surface of the upper and lower tower columns, the thickness of the carbon fiber plate is 1.4 mm, and the width is 100 mm.
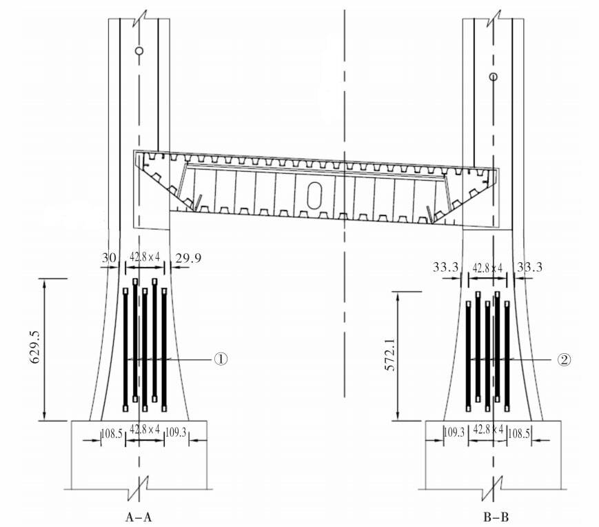
On the tower column of the cable-stayed bridge, there are three prestressed carbon fiber plates with a length of 3405 cm on the left and right towers. The upper end of the carbon fiber plate is 64 cm from the bottom edge of the steel tower crown, and the leftmost carbon fiber plate is 76 cm from the leftmost side of the tower column. The second and third carbon fiber plates are arranged at 38 cm and 91 cm to the right. An initial stress of 360 MPa is applied to the carbon fiber plate, and the two ends of the carbon fiber plate are anchored with supporting anchors. Under the tower column of the pylon, there are 5 carbon fiber plates with lengths of 650. 6 cm (left) and 581.5 cm (right) on the left and right towers on the outside of the cable surface. The spacing between the carbon plates is 42.8 cm, which are arranged in a staggered manner. (See Figure 2). The vertical spacing is 50 cm, an initial stress of 720 MPa is applied to the carbon fiber plate, and the two ends of the carbon fiber plate are anchored with supporting anchors.

Construction preparation
The preparatory work before reinforcement construction is as follows:
1) Use a steel bar detector or remove the concrete protective layer to clarify the location of the original steel mesh, so as to determine the installation location of the anchor;
2) Mark the center line of the anchorage installation position;
3) According to the length of the free section of the carbon fiber plate, combined with the tension of the carbon fiber plate
The stretch length determines the position of the slot;
4) Cutting and chiseling out the grooves for placing the carbon fiber plate anchors and tensioning devices. The schematic diagram is shown in Figure 3. The fixed end slot size is 100mm X150mm X25mm, the tension end slot size is 100mm X 150mm X 25mm, the carbon plate and slot size is 120mm X15mm, and the length is determined by the design length of the carbon plate.
5) Identify the positions of the holes where the chemical anchor bolts need to be installed, drill and install the M24 type chemical anchor bolts according to the instructions for the chemical anchor bolts. At the same time, clean the base surface where the carbon fiber plate needs to be pasted, and apply leveling glue, as shown in Figure 4.

Construction technology
The main work flow of carbon fiber plate pasting is shown in Figure 5, including:
1) Install fixed end and tension end anchors, and fix with chemical anchor bolts;
2) In the groove of the carbon fiber plate concrete base surface, apply the special glue for carbon fiber plate first, and the thickness of the application is the thickness of the groove;
3) Coat the carbon fiber plate special glue on the carbon fiber plate, where the last 28 cm of the fixed end and the last 22 cm of the tension end are not applied.

The main steps of carbon fiber plate tensioning are:
1) After the chemical anchor is completely solidified, install the carbon fiber plate anchor and the tension device according to the tension diagram;
2) After ensuring that all parts are installed correctly, initially stretch to 8~10 k N and mark the anchor position of the tension end;
3) Tension in stages to the design initial stress, and record the elongation in each level of tensioning project. If the elongation is found to be abnormal, the tension should be stopped and the reason should be checked. The jack used for construction before tensioning needs to be calibrated, and the tension end nut should be tightened in time before each jack return. Non-operators should stay away from the construction site during tensioning construction, and operators should take necessary protection. The on-site construction of carbon fiber plate tensioning is shown in Figure 6.

4) After the tensioning is completed, remove the tensioning machine and remove the excess structural glue on the carbon fiber plate and concrete surface;
5) Seal the anchor and perform necessary protective treatment on the surface of the carbon fiber plate anchorage, see Figure 7.

Conclusion
The cable-stayed bridge A and B of Xiaonan Interchange on Hanshi Expressway is a curved cable-stayed bridge without back cables. It has the characteristics of single tower, backward tilt of bridge tower, no back cable and tower beam consolidation. The local force of the tower column consolidation is complicated, and local cracks appear, which affect the safety of the bridge structure. The reinforcement plan adopts the prestressed carbon fiber plate reinforcement technology, and the tension prestressed carbon fiber plate is set on the outer side of the cable surface of the upper and lower tower columns. Through the tension of the carbon fiber plate and the good adhesion between the concrete and the carbon fiber plate, the local force of the bridge tower column is well improved, and the reinforcement effect is good, which has the value of popularization and application.
You can find anything here you are in need of, have a trust trying on these products, you will find the big difference after that.
High strength, unidirectional carbon fiber wrap pre-saturated to form a carbon fiber reinforced polymer (CFRP) wrap used to strengthen structural concrete elements.
High strength carbon fiber reinforced polymer (CFRP) strip / laminate / plate for structural strengthening and concrete repair
Prestressed carbon fiber reinforced polymer(CFRP) plate for slab, beam strengthening to increase stiffness, reduce distortion and deflection of members, reduce the cracks, avoid and stop cracking.